
Fanny GLAUSER
DESSINATRICE en BATIMENT
Forte de 17 années d'expérience en tant que dessinatrice en bâtiment, je maîtrise aussi bien la conception de projets neufs que la rénovation.
En tant qu'unique interlocutrice, je vous assure une réactivité optimale et une conception entièrement personnalisée, adaptée à vos besoins
Présentation
Avec 17 ans d'expérience et des diplômes reconnus, je vous assure un travail maîtrisé et pleinement professionnel.
Je réalise les relevés sur site, la conception des plans APS-APD, la réalisation des dossiers de permis de construire ou de déclaration préalable, ainsi que les dossiers de mise en copropriété ou modificatifs.
Grâce à mon réseau professionnel, je vous accompagne à chaque étape de votre projet en toute sérénité.
Située sur l'axe Vesoul-Besançon, j'interviens dans un rayon d'environ 60 km autour de Rioz (70), couvrant ainsi les départements de la Haute-Saône, du Doubs et du Jura. Par ailleurs, certaines missions peuvent être effectuées à distance si besoin.
Pour travailler en toute tranquillité d'esprit, je dispose d'une assurance décennale.
Mon atout principal : une combinaison d'expérience et de réactivité.
Missions proposées
Permis de construire
Projet neuf ou rénovation, je réalise votre dossier demande de permis de construire.
Je réalise la conception des plans de votre projet, établis les différents plans et documents à joindre au permis. Je vous accompagne (ou gère pour vous) les autres documents obligatoires éventuels tels que l'attestation thermique, l'étude de sol... le tout jusqu'au dépôt de votre dossier en mairie.
Déclaration Préalable
De la même manière que pour le permis de construire je réalise votre dossier de déclaration préalable de travaux.
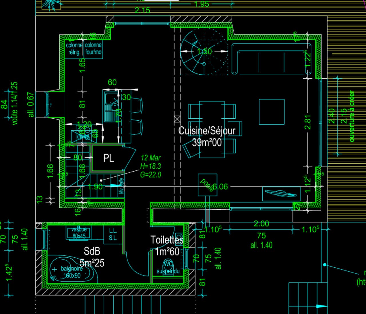
Plans d'aménagement
Je réalise les plans d'état des lieux et/ou les plans d'avant-projet définitif détaillé.
Ces plans côtés et détaillés permettent de connaître les surfaces et linéaires (nécessaires à l'établissement des devis artisans ou pour vos ml/m² de matériaux en auto-construction).
Je peux les transmettre au format de votre choix : papiers, pdf, dwg...
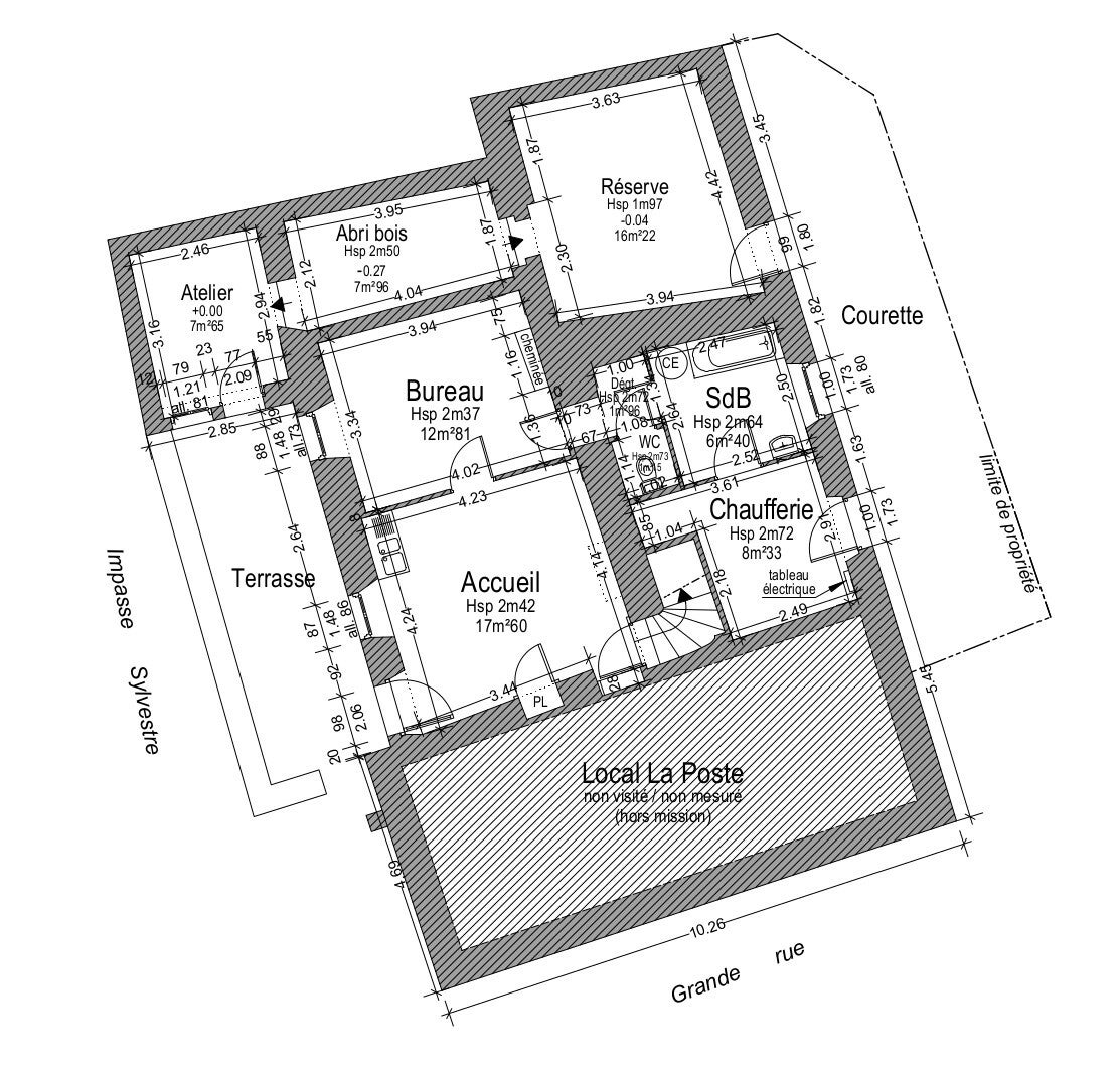
Mise en copropriété
Je réalise vos dossiers de mise en copropriété : mesuarges sur sites, édition des certificats de superficies loi Carrez, calculs des tantièmes, rédaction de l'état descriptif de division.
Si besoin, je vous dirige vers un professionnel de confiance pour la réalisation du DTG et des diagnostics parties communes obligatoires.
Je vous fournis le dossier complet, prêt à remettre à votre notaire.
Contactez-moi
Horaires :
du lundi au vendredi : 8h-12h / 14h-17h
Localisation
70190 Cirey